▽ 东侧鸟瞰


南京大学幼儿园是一所面向社会招生的公立幼儿园。它位于南大鼓楼校区西侧,与校区“北园”隔平仓巷而邻。幼儿园北侧为南大工程管理学院(包括原天文楼),东侧为留学生公寓,西、南侧为社会性居住小区。园区主体处于街廓腹地,仅通过东侧学生公寓间的狭长用地与平仓巷入口连通。
▽ 区位图

▽ 俯视图

自1953年建园以来,园区经过多次拓展、扩建而成。在此过程中,由于缺乏整体的规划,而存在空间、使用上的诸多问题。并且,部分园舍建筑经结构检测已无法达到安全标准。因此,本次改造更新既需要重新梳理、整合园区空间结构,又需要对园舍建筑进行加固、改造。
▽ 总平面图

▽ 改造前幼儿园


园区空间结构重整
改造前的园区空间布局中,厨房、非机动车停车等服务性功能被安排在园区西侧边缘,与东侧入口距离很远,货运、停车等服务流线须东西向穿越整个园区,导致物流、人流交叉,流线组织混乱。
▽改造前后流线分析图


▽ 入园空间鸟瞰

2号楼体量狭长,东、西两端直抵园区边界,将园区拦腰切分为南、北两部分,之间仅能通过2号楼中部通道连通。厨房位于2号楼底层西端,对于主要作为幼儿生活、教学空间的2号楼,有很大的消防安全隐患,同时,其油烟污染对幼儿健康不利。
▽ 入园空间

本次改造,首先将厨房从2号楼西侧底层的不利位置调整至园区东侧原“建构活动室”位置,经由沿园区东侧边缘设置的后勤服务通道,与门卫楼新开设的后勤出入口直接联系。由此,避免了后勤服务流线与幼儿生活流线交叉,改造方案通过这一关键性调整启动了整个园区流线的重新组织和空间结构调整。基于后勤服务通道,结合入园空间的风雨连廊北廊,设置了停车棚,方便教工从后勤出入口入园停车。
▽ 1号楼、厨房之间的风雨连廊

结合2号楼单体改造,通过在2号楼底层架空2个单元开间,再加上东、西两侧通道,大大增强2号楼南北两侧外部空间的视线、流线联系,使原本被2号楼切分而割裂的园区南、北两部分在感知上成为一个整体。
▽ 1号楼、厨房之间的风雨连廊

在园区内置入一套风雨连廊系统,串联各栋园舍及服务设施,将原本异质、散乱的园区各部分联系成一个整体。除了具有遮阳避雨的功能,连廊系统也对园区外部空间尺度起到了调节作用,为园区整体增加了一个近人尺度的空间层次。其中,门卫楼南、北两翼各有新开的门洞,作为风雨连廊系统的两个端点,分别向北引向2号楼、1号楼,向南引向4号楼、3号楼。将主入口与园区主体之间的狭长空间,转换成尺度适宜的入园先导空间。北廊通过OSB板分隔幼儿入园流线和后勤服务流线,同时作为展墙;南廊则围合出4个展亭,也可作为活动器械的临时收纳处。
▽ 1号楼、厨房之间的风雨连廊

园舍单体改造
在园舍建筑中,70年代建造的2号楼规模最大,使用强度最高,可被视为园区主楼,然而其建筑质量较差,空间亦不适用,无法与其重要性相匹配。因此,本次改造对2号楼的改造力度最大。2号楼本体仅保留部分墙体,将其结构体系从原砖混结构替换为钢筋混凝土框架结构,使之符合幼儿园结构安全要求。结构替换使空间扩展和转换成为可能。
▽ 改造后结构示意图

▽ 施工中的2号楼


将2号楼2层外走廊从1.2米净宽的挑廊,拓宽至2.8米至3.2米宽的柱廊,使其既符合幼儿园疏散要求,又可额外作为生活单元活动空间的延伸。该走廊外侧采用半封闭围护界面,可作为生活单元的气候缓冲空间。走廊立面、屋面设有纵贯整个空间的中悬窗和天窗,通过其开闭,可对走廊内的微气候进行调节。夏季,开启悬窗和部分天窗,可获得良好的通风;反之,冬季可产生“暖廊”效应。天窗设置在靠生活单元一侧,可补充室内采光,走廊吊顶的铝合金垂片将天窗采光调节成柔和的光线。另外,调整生活单元的开间划分和楼梯间的位置,将原本位于2号楼中部的楼梯调整为东、西侧各一部,以满足疏散规范要求。两部楼梯分别位于走廊内、外侧,以适应不同的气候情况,并且与园区风雨连廊系统相衔接。
▽ 2号楼底层架空空间

▽ 作为气候缓冲空间的2号楼二层走廊


▽ 2号楼幼儿生活单元

1、3号楼及门卫楼为上世纪90年代建造的幼教建筑,为半砖混、半框架结构。本次改造对它们进行结构加固,并同时改善保温、隔热、通风和采光等建筑性能。1、3号楼各增设一部钢结构疏散楼梯。
▽ 2号楼东侧楼梯

▽ 2号楼底层走廊与风雨连廊衔接

原“科学室”、4号楼为砖承重墙、木屋架混合结构房屋。本次改造在加固砖砌体结构的同时,将木屋架替换为钢屋架。“科学室”屋面增设天窗,使之适用于阅览、美术等教学内容。“科学室”东、南侧在原有檐口以下增加披檐,与风雨连廊和1号楼疏散通道衔接。
▽ 施工中的美术室、阅览室

▽ 美术室、阅览室


原“建构活动室”、“器材室”为简易搭建的棚屋,已无法继续使用,本次改造中将它们拆除重建。其中,原“建构活动室”替换为钢结构厨房;原“器材室”替换为钢结构教师休息室。
▽ 教师休息室

1、2、3号楼朝向主要活动场地的立面,采用穿孔铝板幕墙,赋予主要空间界面视觉连续性,并与风雨连廊的金属波浪板屋面相呼应。
▽ 1号楼南立面、2号楼北立面

▽ 2号楼南立面细部

▽ 2号楼南立面局部


▽ 2号楼窗墙细部

场地与景观
结合园内原有的高大树木,用弧形矮墙围合出尺度不同的树下活动区域。部分建筑渣土被用于填充坡地活动区的人工地形,周边的弧形矮墙正好成为挡土墙。2号楼底层架空空间,设置有下沉的小剧场,其看台外侧的弧形矮墙、西侧多功能室舞台背后的弧形展墙、小剧场屏幕背后户外手作区的弧形涂鸦墙,与各处树下活动区的弧形矮墙,形成了建筑、景观要素之间的关联。
▽ 树下活动区、坡地活动区



▽ 活动场地与架空空间的连续

▽ 小剧场

▽ 户外手作区、涂鸦墙

▽ 涂鸦墙

原来园区边缘的消极地带,由于风雨连廊的串联和限定而变得积极,设置了水池、沙坑、种植和饲养园地等自然教育场地。风雨连廊可以被视为有覆盖的活动场地,其构架可以作为附加活动设施的“支撑体”。
▽ 种植园地

▽ 风雨连廊作为活动场地

▽ 风雨连廊作为活动场地

▽ 2号楼屋顶活动区


▽ 3号楼屋顶活动区及南侧活动区

2号楼南侧巨大的枫杨树,对于该园具有重要的精神性意义。从平仓巷主入口进入园区,正对高大枫杨树的景观,具有纪念性意味。改造后,入口门厅空间将进一步开敞,而入园过渡空间的宽度由两侧风雨连廊的限定而收窄,再加上风雨连廊的对称性,以及地面上跑道的导向性,都强调了这一空间序列。
▽ 入口门厅与风雨连廊的连接关系

▽ 从入口门厅看枫杨树

▽ 从枫杨树看入园空间

结语
如上所述,在对现实问题的不断应对和解决中,建筑师主动或被动地对空间和构架进行“合”与“分”的处理,并对空间尺度不断做出调节。从而,园区整体呈现出“由局部相互接续所形成的连续空间”,兼具局部场所(place)的稳定感、归属感,与整体空间(space)的流动性、自由感。建筑师相信,这种环境的多义与可读,可以成为幼儿对世界认知的原初风景。
▽幼儿园小朋友共同绘制的园区认知地图

▽ 2号楼南立面


▽ 2号楼北立面

▽ 从1号楼看户外手作区和小剧场

▽ 改造后一层平面

▽ 改造后二层平面

▽ 改造后剖面


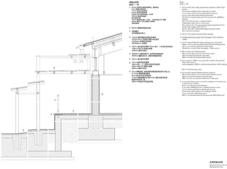
▽ 风雨连廊大样图

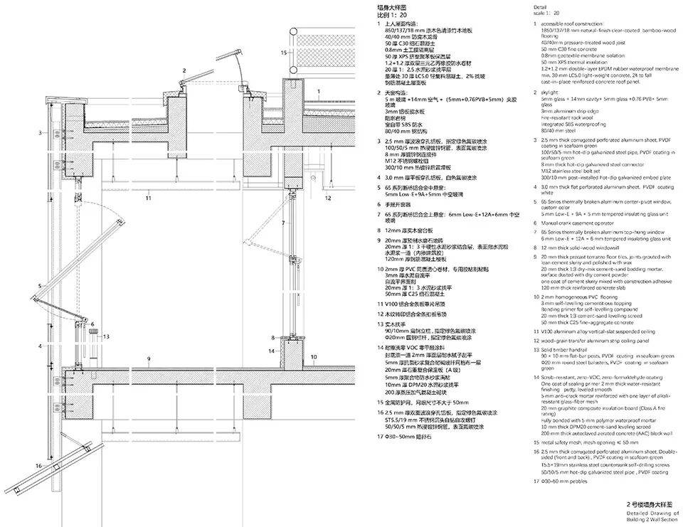
▽ 2号楼墙身大样图

项目信息
项目名称:南京大学幼儿园改造
项目地点:南京市鼓楼区平仓巷3号
建筑、室内、景观设计:南京大学建筑规划设计研究院有限公司 间架工作室
主创建筑师:王峣、杨侃
建筑、室内、景观方案设计团队:杨侃、王峣、翟曌钰、邱国强、陈志凡、潘晴、周理洁
建筑施工图设计团队:王峣、杨侃、毛羽臻
南京大学建筑规划设计研究院各专业配合团队:
景观深化与施工图设计:沈佩玉,包佳楠
幕墙设计:曹丽珠
机电设计:徐庆(给排水);王碧通(暖通);高晟、邢自巧(电气);巫程、陈洪亮(智能化)
结构设计(风雨连廊):张巍
结构设计(含加固):江苏东南建筑工程结构设计事务所有限公司
室内施工图设计:南京市第二建筑设计院有限公司
标识设计:及地设计
业主:南京大学
施工单位:南京金鸿装饰工程有限公司(总包)、南京革煊建设工程有限公司(景观)
用地面积:5178平方米
建筑面积:3980平方米
设计时间:2019年12月—2023年2月
建设时间:2023年8月—2024年8月
图片摄影:侯博文、韩曼、间架工作室
视频制作:张耀天